- Ontario
- Kawartha Lakes
123 Elysian Fields Rd
CAD$5,300,000
CAD$5,300,000 Asking price
123 Elysian Fields RoadKawartha Lakes, Ontario, K0M1G0
Delisted · Terminated ·
4510(3+7)| 3500-5000 sqft
Listing information last updated on Mon Nov 13 2023 10:18:52 GMT-0500 (Eastern Standard Time)

Open Map
Log in to view more information
Go To LoginSummary
IDX5956867
StatusTerminated
Ownership TypeFreehold
PossessionTbd
Brokered ByRE/MAX JAZZ INC., BROKERAGE
TypeResidential Bungalow,Loft,House,Detached
AgeConstructed Date: 2023
Lot Size208.23 * 0 Feet Depth Irregular.
Square Footage3500-5000 sqft
RoomsBed:4,Kitchen:1,Bath:5
Parking3 (10) Attached +7
Virtual Tour
Detail
Building
Bathroom Total5
Bedrooms Total4
Bedrooms Above Ground4
Basement TypeFull
Construction Style AttachmentDetached
Cooling TypeCentral air conditioning
Exterior FinishBrick,Wood
Fireplace PresentTrue
Heating FuelPropane
Heating TypeForced air
Size Interior
Stories Total1
TypeHouse
Architectural StyleBungaloft
FireplaceYes
HeatingYes
Main Level Bedrooms1
Property FeaturesMarina,Waterfront
Rooms Above Grade10
Rooms Total10
Heat SourcePropane
Heat TypeForced Air
WaterWell
New ConstructionYes
Laundry LevelMain Level
GarageYes
Sewer YNANo
Water YNANo
Telephone YNAAvailable
Land
Size Total Text208.23 FT ; Depth Irregular.|1/2 - 1.99 acres
Acreagefalse
AmenitiesMarina
SewerSeptic System
Size Irregular208.23 FT ; Depth Irregular.
Lot FeaturesIrregular Lot
Lot Dimensions SourceOther
Lot Size Range Acres.50-1.99
Parking
Parking FeaturesPrivate
Utilities
Water Body NameBalsam
Waterfront FeaturesMarina Services,Trent System,Winterized
Electric YNAYes
WaterfrontYes
Surrounding
Ammenities Near ByMarina
Other
Den FamilyroomYes
Internet Entire Listing DisplayYes
SewerSeptic
Central VacuumYes
BasementFull
PoolNone
FireplaceY
A/CCentral Air
HeatingForced Air
TVAvailable
ExposureN
Remarks
New Home To Be Built. Introducing An Extraordinary Balsam Lake Waterfront Home By Nationally Recognized And Award-Winning Builder, Trademark Homes. This Show-Stopping Property Is Situated On Over 1.26 Acres Of Flat Land With 208 Feet Of Calm Waterfront. Located On The Most Exclusive Street Of Luxury Homes And Recently Sold-Out Enclave Development By The Builder, This Property Provides The Epitome Of Luxury Living. Enjoy Over 4300 Sq Ft Of Luxurious Finishes And Impeccable Craftsmanship, Including Two Main Floor Bedrooms With Ensuites, Modern Rooflines, And Stunning Lake Views. You Can Also Work With The Builder To Choose Your Own House Design. This Property Offers Water Access To The Trent Severn System, Two Local Marinas, High-Speed Fiber Internet And So Much More. Only 15 Minutes To Fenelon Falls And 25 Minutes To Lindsay, The Perfect Blend Of Seclusion And Convenience With The Main Access Road Just Hard-Surfaced in July 2023.Option For 30X30 Boathouse As Well. Don't Miss This Once-In-A-Lifetime Opportunity To Own A Truly Unique And Luxurious Waterfront Home.
The listing data is provided under copyright by the Toronto Real Estate Board.
The listing data is deemed reliable but is not guaranteed accurate by the Toronto Real Estate Board nor RealMaster.
Location
Province:
Ontario
City:
Kawartha Lakes
Community:
Rural Fenelon 11.01.0150
Crossroad:
Kagawong/Glenarm
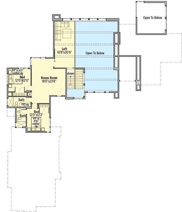
Room
Room
Level
Length
Width
Area
Kitchen
Main
NaN
Great Room
Main
NaN
Dining Room
Main
NaN
Primary Bedroom
Main
NaN
Bedroom 2
Main
NaN
Office
Main
NaN
Bedroom 3
Second
NaN
Bedroom 4
Second
NaN
Loft
Second
NaN
Game Room
Second
NaN






































