- Alberta
- Grande Prairie
9323 106 Ave
CAD$724,900
CAD$724,900 Asking price
9323 106 AvenueGrande Prairie, Alberta, T8V1H6
Delisted · Delisted ·
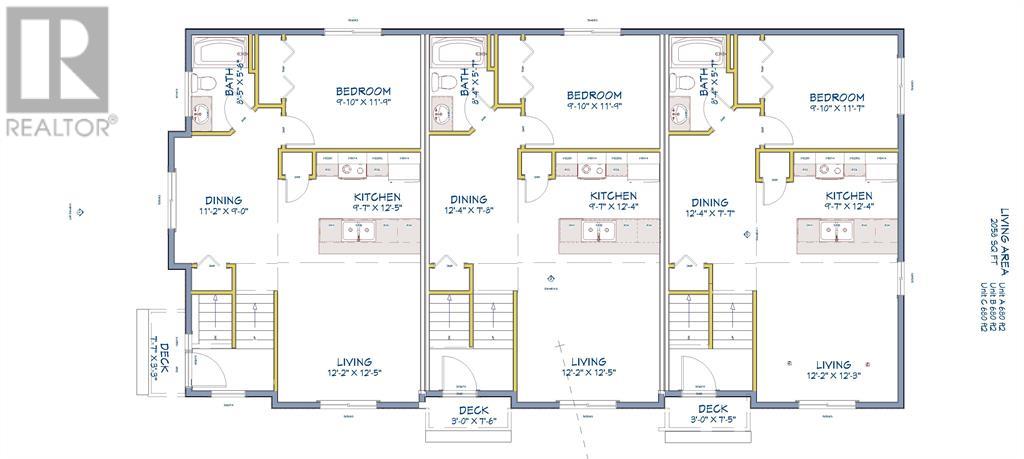
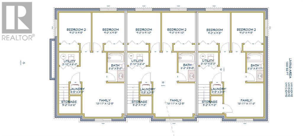
6| 2040 sqft
Listing information last updated on Sat Feb 17 2024 14:13:59 GMT-0500 (Eastern Standard Time)

Open Map
Log in to view more information
Go To LoginSummary
IDA2049847
StatusDelisted
Ownership TypeFreehold
Brokered BySutton Group Grande Prairie Professionals
TypeResidential Other,Multifamily
Age New building
Land SizeUnknown
Square Footage2040 sqft
RoomsBed:0,Bath:0
Virtual Tour
Detail
Building
AgeNew building
AppliancesRefrigerator,Dishwasher,Stove,Washer & Dryer
Architectural StyleBi-level
Basement DevelopmentFinished
Basement FeaturesSuite
Basement TypeFull (Finished)
Construction MaterialPoured concrete,Wood frame
Construction Style AttachmentAttached
Exterior FinishConcrete
Fireplace PresentFalse
Flooring TypeCarpeted,Vinyl Plank
Foundation TypePoured Concrete
Size Interior2040 sqft
Total Finished Area2040 sqft
TypeMulti-Family
Land
Size Total TextUnknown
Acreagefalse
Concrete
Other
Parking Pad
Surrounding
Zoning Descriptionrt
BasementFinished,Suite,Full (Finished)
FireplaceFalse
Remarks
BRAND NEW Contemporary Designed 3 Plex with each suite having 3 bedrooms 2 bathrooms and 2 living rooms (SEPERATE POWER AND GAS METERS). STAINLESS STEEL KITCHEN Appliances, FRONT LOAD WASHER AND DRYER and landscaping WITH SOD included. This unique layout is designed with maximum CASH FLOW in mind featuring 3 suites each with 3 bedrooms, 2 full bathrooms and a bonus living area in the basement. The main floor of these homes features an open layout throughout the kitchen and living room and also has a roomy master bedroom and a 4-piece main bath right beside it. The kitchen features an island, a corner pantry and soft close cabinets and real wood soft close drawers. In the basement there are two more bedrooms, a 4-piece bathroom, a 2nd living room and a laundry closet. Each unit will have its own power and gas meters and each suite will have a 2-vehicle concrete parking stall. To top it off everything is included, Stainless Steel appliances and washer and dryer for each suite, sod for the yard & 10yr new home warranty, hot water on demand, 50-year shingles. This triplex is under construction and should be completed February 1, 2024, see progress photos. This incredible location is on a corner lot and across from a school field. (Photos are samples from similar layout) (id:22211)
The listing data above is provided under copyright by the Canada Real Estate Association.
The listing data is deemed reliable but is not guaranteed accurate by Canada Real Estate Association nor RealMaster.
MLS®, REALTOR® & associated logos are trademarks of The Canadian Real Estate Association.
Location
Province:
Alberta
City:
Grande Prairie
Community:
Hillside






















