- British Columbia
- Fort St. John
8332 88 Ave
CAD$549,000
CAD$549,000 Asking price
8332 88 AVENUEFort St. John, British Columbia, V1J0S2
Delisted
53(2)| 2152 sqft
Listing information last updated on Tue Feb 27 2024 08:37:47 GMT-0500 (Eastern Standard Time)

Open Map
Log in to view more information
Go To LoginSummary
IDR2808635
StatusDelisted
Ownership TypeFreehold
Brokered ByCentury 21 Energy Realty
TypeResidential House,Detached
AgeConstructed Date: 2018
Land Size5932 sqft
Square Footage2152 sqft
RoomsBed:5,Bath:3
Parking2
Virtual Tour
Detail
Building
Bathroom Total3
Bedrooms Total5
AppliancesWasher,Dryer,Refrigerator,Stove,Dishwasher
Basement DevelopmentFinished
Basement TypeUnknown (Finished)
Constructed Date2018
Construction Style AttachmentDetached
Fireplace PresentFalse
Foundation TypeConcrete Perimeter
Heating FuelElectric,Natural gas
Heating TypeForced air
Roof MaterialAsphalt shingle
Roof StyleConventional
Size Interior2152 sqft
Stories Total2
TypeHouse
Utility WaterMunicipal water
Land
Size Total5932 sqft
Size Total Text5932 sqft
Acreagefalse
Size Irregular5932
Garage
Open
BasementFinished,Unknown (Finished)
FireplaceFalse
HeatingForced air
Remarks
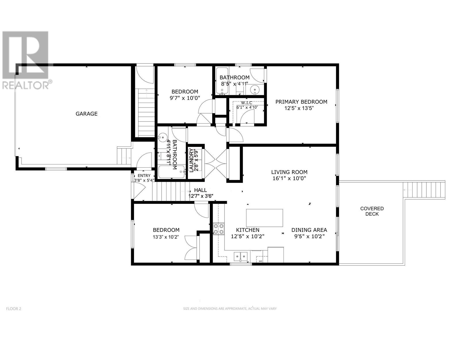
Investor alert! Don't miss this quality-built home with a legal suite. The main floor showcases an open-concept design with 3 spacious bedrooms & 2 baths. The master suite features a 4 pc ensuite & walk-in closet. The gourmet kitchen is a chef's delight, overflowing with cabinets & counter space, an inviting eat-up island & stainless-steel appliances. You will love the sundrenched living & dining area that leads to a covered deck for your outdoor leisure. The suite below boasts an open living space, large kitchen with SS appliances, 2 bedrooms & 4 pc bath and is currently rented for $1400/month. Both spaces have dedicated laundry, separate entries, sound proofing & individual meters. Heated garage, tenant parking & fenced yard. A smart move for a savvy investor! Quick possession available. (id:22211)
The listing data above is provided under copyright by the Canada Real Estate Association.
The listing data is deemed reliable but is not guaranteed accurate by Canada Real Estate Association nor RealMaster.
MLS®, REALTOR® & associated logos are trademarks of The Canadian Real Estate Association.
Location
Province:
British Columbia
City:
Fort St. John
Room
Room
Level
Length
Width
Area
Kitchen
Lower
11.09
19.09
211.74
11 ft ,1 in x 19 ft ,1 in
Primary Bedroom
Lower
15.16
13.09
198.42
15 ft ,2 in x 13 ft ,1 in
Bedroom 4
Lower
13.16
9.68
127.33
13 ft ,2 in x 9 ft ,8 in
Living
Main
16.08
10.01
160.87
16 ft ,1 in x 10 ft
Kitchen
Main
12.40
10.17
126.13
12 ft ,5 in x 10 ft ,2 in
Dining
Main
9.42
10.17
95.77
9 ft ,5 in x 10 ft ,2 in
Primary Bedroom
Main
12.40
13.42
166.41
12 ft ,5 in x 13 ft ,5 in
Bedroom 2
Main
9.58
10.01
95.86
9 ft ,7 in x 10 ft
Bedroom 3
Main
13.25
10.17
134.81
13 ft ,3 in x 10 ft ,2 in

































