- Ontario
- Cornwall
222 Nelson St
CAD$379,900
CAD$379,900 Asking price
222 NELSON STREETCornwall, Ontario, K6H3L8
Delisted · Delisted ·
322
Listing information last updated on Wed Sep 20 2023 08:35:00 GMT-0400 (Eastern Daylight Time)

Open Map
Log in to view more information
Go To LoginSummary
ID1357986
StatusDelisted
Ownership TypeFreehold
Brokered ByRE/MAX AFFILIATES MARQUIS LTD.
TypeResidential House,Detached,Bungalow
AgeConstructed Date: 1958
Lot Size50 * 100 ft 50 ft X 100 ft
Land Size50 ft X 100 ft
RoomsBed:3,Bath:2
Virtual Tour
Detail
Building
Bathroom Total2
Bedrooms Total3
Bedrooms Above Ground3
AppliancesRefrigerator,Microwave Range Hood Combo,Stove
Architectural StyleBungalow
Basement DevelopmentFinished
Basement TypeFull (Finished)
Constructed Date1958
Construction Style AttachmentDetached
Cooling TypeCentral air conditioning
Exterior FinishSiding
Fireplace PresentFalse
Flooring TypeHardwood,Laminate,Ceramic
Foundation TypePoured Concrete
Half Bath Total0
Heating FuelNatural gas
Heating TypeForced air
Size Exterior844 sqft
Stories Total1
TypeHouse
Utility WaterMunicipal water
Land
Size Total Text50 ft X 100 ft
Acreagefalse
AmenitiesPublic Transit,Recreation Nearby,Shopping
Fence TypeFenced yard
SewerMunicipal sewage system
Size Irregular50 ft X 100 ft
Surrounding
Ammenities Near ByPublic Transit,Recreation Nearby,Shopping
Zoning DescriptionResidential
BasementFinished,Full (Finished)
FireplaceFalse
HeatingForced air
Remarks
Set on a serene street, this 3 bed, 2 bath bungalow gives you the opportunity to live a cozy and convenient lifestyle. Hardwood floors grace the living and dining area. The functional kitchen hosts ample cabinets, ceramic floors, and a door to the back deck and fenced yard. The finished basement boasts a 3pc bath, rec room with gas stove, laundry, utility space, and cold storage. Outside, a sizable insulated workshop awaits. Updates encompass new windows, gas furnace, AC, tankless hot water, electrical panel, and eaves troughs. Ideal for comfort and convenience in a lovely North End neighborhood. (id:22211)
The listing data above is provided under copyright by the Canada Real Estate Association.
The listing data is deemed reliable but is not guaranteed accurate by Canada Real Estate Association nor RealMaster.
MLS®, REALTOR® & associated logos are trademarks of The Canadian Real Estate Association.
Location
Province:
Ontario
City:
Cornwall
Community:
North End
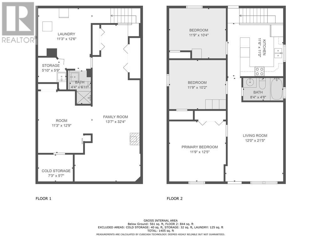
Room
Room
Level
Length
Width
Area
Family/Fireplace
Bsmt
13.58
32.35
439.39
13'7" x 32'4"
Playroom
Bsmt
11.25
12.76
143.62
11'3" x 12'9"
3pc Bathroom
Bsmt
NaN
Measurements not available
Laundry
Bsmt
11.25
12.50
140.67
11'3" x 12'6"
Storage
Bsmt
5.84
5.74
33.53
5'10" x 5'9"
Living/Dining
Main
12.01
21.42
257.26
12'0" x 21'5"
Kitchen
Main
11.52
10.99
126.57
11'6" x 11'0"
Primary Bedroom
Main
11.75
12.40
145.66
11'9" x 12'5"
4pc Bathroom
Main
NaN
Measurements not available
Bedroom
Main
11.75
10.17
119.46
11'9" x 10'2"
Bedroom
Main
11.75
10.33
121.38
11'9" x 10'4"























