- British Columbia
- Campbell River
575 Alexander Dr
CAD$589,000
CAD$589,000 Asking price
575 Alexander DrCampbell River, British Columbia, V9H1S5
Delisted · Delisted ·
324| 1255 sqft
Listing information last updated on Sat Aug 05 2023 09:30:52 GMT-0400 (Eastern Daylight Time)

Open Map
Log in to view more information
Go To LoginSummary
ID939103
StatusDelisted
Ownership TypeFreehold
Brokered By460 Realty Inc. (CR)
TypeResidential House
AgeConstructed Date: 1994
Land Size6098 sqft
Square Footage1255 sqft
RoomsBed:3,Bath:2
Virtual Tour
Detail
Building
Bathroom Total2
Bedrooms Total3
Constructed Date1994
Cooling TypeNone
Fireplace PresentFalse
Heating FuelNatural gas
Heating TypeForced air
Size Interior1255 sqft
Total Finished Area1255 sqft
TypeHouse
Land
Size Total6098 sqft
Size Total Text6098 sqft
Access TypeRoad access
Acreagefalse
Size Irregular6098
Surrounding
Zoning TypeResidential
Other
FeaturesCentral location,Curb & gutter,Other
FireplaceFalse
HeatingForced air
Remarks
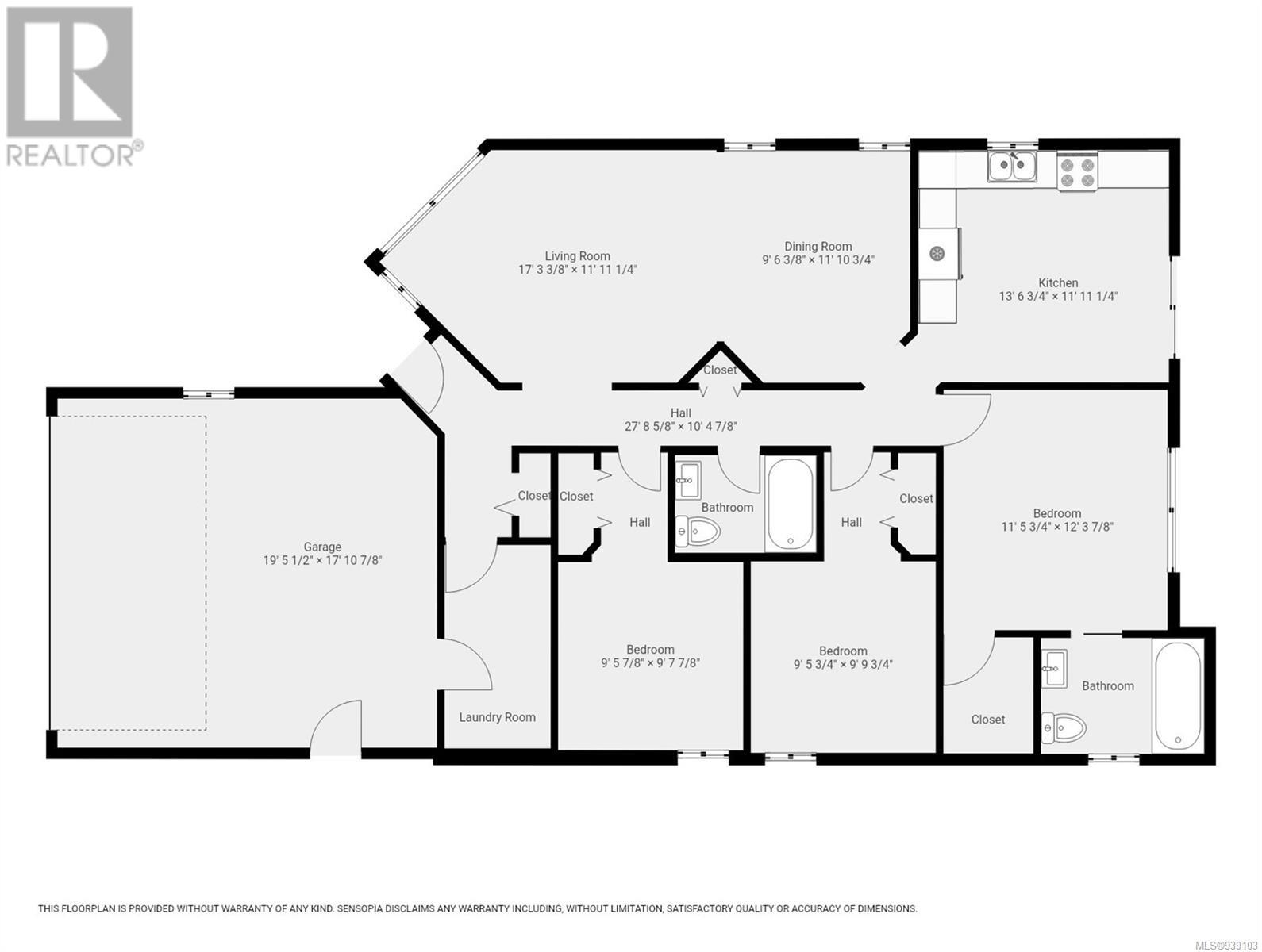
Delightful, turnkey rancher in the heart of Willow Point on a lovely, low maintenance, fully fenced yard. This 3 bed, 2 bath 1255 sq.ft home, comes with oodles of wonderful qualities. You'll find a bright kitchen with room for a small table and sliding doors leading from the kitchen, right to the newer deck and private backyard. There's a separate dining room w/ a skylight for natural light. The primary bedroom faces the garden for privacy, has a full 4-piece ensuite bathroom and a walk-in closet. There are two nice sized additional bedrooms, and the main, 4-piece bath is bright w/ another skylight! Laundry room boasts washer, dryer, utility sink and a NEW 2023 gas hot water tank. Ample space is found in this double garage w/ thoughtful shelving. The flooring was updated with light coloured laminate, and the home was painted at the same time. There's nothing left to do but move in and enjoy a quiet street close to all amenities, services and shopping. The beach is found only a few blocks away. Close to all levels of school and the Sportsplex, this desired location has it all. (id:22211)
The listing data above is provided under copyright by the Canada Real Estate Association.
The listing data is deemed reliable but is not guaranteed accurate by Canada Real Estate Association nor RealMaster.
MLS®, REALTOR® & associated logos are trademarks of The Canadian Real Estate Association.
Location
Province:
British Columbia
City:
Campbell River
Community:
Willow Point
Room
Room
Level
Length
Width
Area
Laundry
Main
10.40
5.41
56.30
10'5 x 5'5
Bathroom
Main
4.99
NaN
5 ft x Measurements not available
Ensuite
Main
6.00
NaN
6 ft x Measurements not available
Bedroom
Main
9.68
9.51
92.09
9'8 x 9'6
Bedroom
Main
9.84
9.51
93.65
9'10 x 9'6
Primary Bedroom
Main
12.34
11.52
142.06
12'4 x 11'6
Living
Main
12.01
NaN
12 ft x Measurements not available
Dining
Main
11.91
9.58
114.09
11'11 x 9'7
Kitchen
Main
12.01
NaN
12 ft x Measurements not available






















































