- Ontario
- Cambridge
40l Albert St
CAD$699,000
CAD$699,000 Asking price
40L ALBERT StreetCambridge, Ontario, N1R3M8
Delisted · Delisted ·
333| 1637 sqft
Listing information last updated on Fri Mar 01 2024 12:51:24 GMT-0500 (Eastern Standard Time)

Open Map
Log in to view more information
Go To LoginSummary
ID40502146
StatusDelisted
Ownership TypeFreehold
Brokered ByRE/MAX REAL ESTATE CENTRE INC., BROKERAGE
TypeResidential House,Semi-Detached
Age
Land Sizeunder 1/2 acre
Square Footage1637 sqft
RoomsBed:3,Bath:3
Detail
Building
Bathroom Total3
Bedrooms Total3
Bedrooms Above Ground3
Architectural Style2 Level
Basement DevelopmentPartially finished
Basement TypeFull (Partially finished)
Construction Style AttachmentSemi-detached
Cooling TypeNone
Exterior FinishBrick,Vinyl siding
Fireplace PresentFalse
Foundation TypePoured Concrete
Half Bath Total1
Heating FuelNatural gas
Heating TypeForced air
Size Interior1637.0000
Stories Total2
TypeHouse
Utility WaterMunicipal water
Land
Size Total Textunder 1/2 acre
Acreagefalse
AmenitiesPark,Place of Worship,Playground,Public Transit,Schools,Shopping
SewerMunicipal sewage system
Surrounding
Ammenities Near ByPark,Place of Worship,Playground,Public Transit,Schools,Shopping
Community FeaturesQuiet Area
Location DescriptionElliot St to Albert St
Zoning DescriptionRS1
Other
FeaturesCrushed stone driveway
BasementPartially finished,Full (Partially finished)
FireplaceFalse
HeatingForced air
Remarks
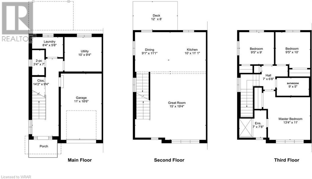
Is there anything better than being able to select your interior finishes? For a limited time, before constructions begins, there is still a window of time where you can pick the colour of ceramic flooring in your bathrooms, kitchen and laundry, your wood laminate flooring and interior paint colour. The main living area has been designed for open concept living with a very spacious great room of 19 x 15 feet and a large kitchen with island plus a spacious dining room. Upstairs you'll find 3 bedrooms, 2 bathrooms with the primary room having an ensuite. Quality built by Melridge homes with full Tarion warranty for added peace of mind. Artist renderings are provided to aid with visualizing the exterior and may not reflect the exact selections made at the time of construction. There are 2 homes available, to be built at this address. Spec sheet available upon request. (id:22211)
The listing data above is provided under copyright by the Canada Real Estate Association.
The listing data is deemed reliable but is not guaranteed accurate by Canada Real Estate Association nor RealMaster.
MLS®, REALTOR® & associated logos are trademarks of The Canadian Real Estate Association.
Location
Province:
Ontario
City:
Cambridge
Community:
Glenview
Room
Room
Level
Length
Width
Area
4pc Bathroom
Second
NaN
Measurements not available
Full bathroom
Second
7.68
7.35
56.42
7'8'' x 7'4''
Bedroom
Second
9.42
8.99
84.65
9'5'' x 9'0''
Bedroom
Second
10.01
9.42
94.22
10'0'' x 9'5''
Primary Bedroom
Second
13.32
10.99
146.40
13'4'' x 11'0''
Laundry
Bsmt
8.33
5.68
47.30
8'4'' x 5'8''
2pc Bathroom
Bsmt
NaN
Measurements not available
Dining
Main
11.09
8.99
99.69
11'1'' x 9'0''
Kitchen
Main
11.09
10.01
110.97
11'1'' x 10'0''
Great
Main
19.32
14.99
289.74
19'4'' x 15'0''









