- Alberta
- Calgary
513 30 St NW
CAD$1,395,000
CAD$1,395,000 Asking price
513 30 Street NWCalgary, Alberta, T2N2V4
Delisted · Delisted ·
3+152| 2067.81 sqft
Listing information last updated on Sun Dec 01 2024 20:09:13 GMT-0500 (Eastern Standard Time)

Open Map
Log in to view more information
Go To LoginSummary
IDA2153558
StatusDelisted
Ownership TypeFreehold
Brokered ByRoyal LePage METRO
TypeResidential House,Detached
Age New building
Land Size3500 sqft|0-4050 sqft
Square Footage2067.81 sqft
RoomsBed:3+1,Bath:5
Detail
Building
Bathroom Total5
Bedrooms Total4
Bedrooms Above Ground3
Bedrooms Below Ground1
AgeNew building
AppliancesWasher,Cooktop - Gas,Dishwasher,Dryer,Microwave,Oven - Built-In,Hood Fan,Garage door opener
Basement DevelopmentFinished
Basement TypeFull (Finished)
Construction MaterialWood frame
Construction Style AttachmentDetached
Cooling TypeNone,See Remarks
Exterior FinishStucco
Fireplace PresentTrue
Fireplace Total1
Flooring TypeCeramic Tile,Hardwood,Other
Foundation TypePoured Concrete
Half Bath Total1
Heating TypeForced air
Size Interior2067.81 sqft
Stories Total2
Total Finished Area2067.81 sqft
TypeHouse
Land
Size Total3500 sqft|0-4,050 sqft
Size Total Text3500 sqft|0-4,050 sqft
Acreagefalse
AmenitiesPark,Playground,Schools,Shopping
Fence TypeFence
Size Irregular3500.00
Surrounding
Ammenities Near ByPark,Playground,Schools,Shopping
Zoning DescriptionR-C2
Other
FeaturesSee remarks,Other,Back lane,No Animal Home,No Smoking Home
BasementFinished,Full (Finished)
FireplaceTrue
HeatingForced air
Remarks
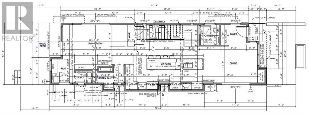
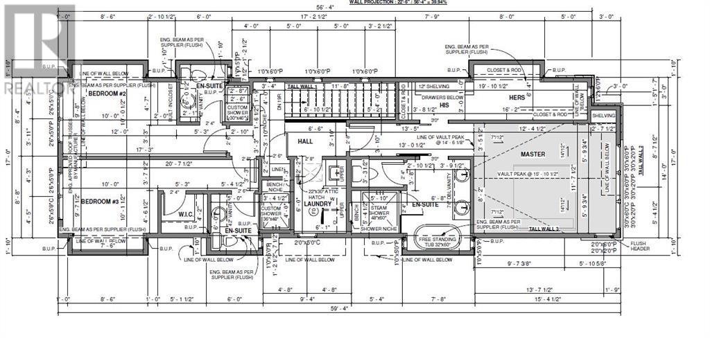
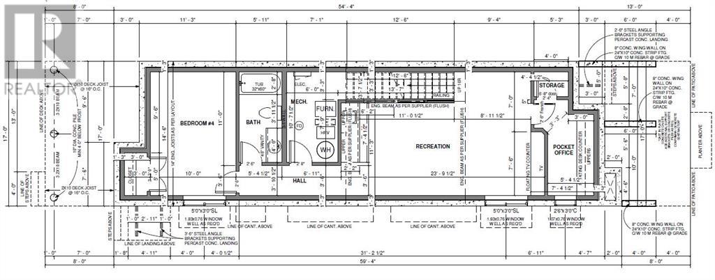
Discover the epitome of modern living in this stunning brand-new home, boasting approx 3,000 square feet of thoughtfully designed space. The main floor features soaring 11-foot ceilings and elegant 9-foot doors, creating an expansive, airy atmosphere. An open-concept layout seamlessly connects the gourmet kitchen—equipped with high-end Thermador appliances and a hidden pantry—to the inviting living room, complete with a cozy gas fireplace and patio doors that lead to outdoor entertaining space. Upstairs, you'll find three spacious bedrooms, each with its own ensuite bathroom with body jet custom showers, as well as a conveniently located laundry room. The primary suite is a true retreat, featuring a massive walk-in closet and an opulent ensuite with heated floors, a double vanity, a luxurious freestanding tub, and a custom steam shower with jets for ultimate relaxation. The finished basement offers additional living space with a fourth bedroom, full bath, recreational room w/ a wet bar, and an office, perfect for work or play. A double car detached garage provides extra convenience. Ideally situated near the Foothills medical Centre, schools, the picturesque Bow River, and lush parks, this home is perfect for those seeking both comfort and accessibility in the vibrant community of Parkdale. (id:22211)
The listing data above is provided under copyright by the Canada Real Estate Association.
The listing data is deemed reliable but is not guaranteed accurate by Canada Real Estate Association nor RealMaster.
MLS®, REALTOR® & associated logos are trademarks of The Canadian Real Estate Association.
Location
Province:
Alberta
City:
Calgary
Community:
Parkdale
Room
Room
Level
Length
Width
Area
Bedroom
Bsmt
14.50
11.25
163.19
14.50 Ft x 11.25 Ft
Furnace
Bsmt
10.56
6.00
63.43
10.58 Ft x 6.00 Ft
Recreational, Games
Bsmt
23.75
14.50
344.45
23.75 Ft x 14.50 Ft
4pc Bathroom
Bsmt
5.31
10.99
58.42
5.33 Ft x 11.00 Ft
Office
Bsmt
7.32
10.01
73.21
7.33 Ft x 10.00 Ft
Other
Main
4.76
6.99
33.24
4.75 Ft x 7.00 Ft
Living
Main
18.01
10.93
196.78
18.00 Ft x 10.92 Ft
Pantry
Main
8.50
6.00
51.02
8.50 Ft x 6.00 Ft
Kitchen
Main
19.00
9.74
185.10
19.00 Ft x 9.75 Ft
Dining
Main
10.07
14.99
151.02
10.08 Ft x 15.00 Ft
Foyer
Main
6.99
5.91
41.27
7.00 Ft x 5.92 Ft
2pc Bathroom
Main
4.49
5.91
26.54
4.50 Ft x 5.92 Ft
Bedroom
Upper
10.01
10.07
100.79
10.00 Ft x 10.08 Ft
3pc Bathroom
Upper
6.00
6.00
36.05
6.00 Ft x 6.00 Ft
Bedroom
Upper
12.01
10.17
122.13
12.00 Ft x 10.17 Ft
3pc Bathroom
Upper
6.00
6.00
36.05
6.00 Ft x 6.00 Ft
Laundry
Upper
6.00
6.07
36.44
6.00 Ft x 6.08 Ft
5pc Bathroom
Upper
12.99
8.99
116.79
13.00 Ft x 9.00 Ft
Primary Bedroom
Upper
15.32
14.01
214.64
15.33 Ft x 14.00 Ft
Other
Upper
6.33
12.99
82.27
6.33 Ft x 13.00 Ft
Book Viewing
Your feedback has been submitted.
Submission Failed! Please check your input and try again or contact us



