- Alberta
- Calgary
3537 7 Ave SW
CAD$1,249,000
CAD$1,249,000 Asking price
3537 7 Avenue SWCalgary, Alberta, T3C0C9
Delisted · Delisted ·
3+142| 2311 sqft
Listing information last updated on Thu Dec 28 2023 08:40:16 GMT-0500 (Eastern Standard Time)

Open Map
Log in to view more information
Go To LoginSummary
IDA2058406
StatusDelisted
Ownership TypeFreehold
Brokered ByeXp Realty
TypeResidential House,Detached
Age New building
Land Size3406.5 sqft|0-4050 sqft
Square Footage2311 sqft
RoomsBed:3+1,Bath:4
Detail
Building
Bathroom Total4
Bedrooms Total4
Bedrooms Above Ground3
Bedrooms Below Ground1
AgeNew building
AppliancesWasher,Refrigerator,Dishwasher,Stove,Dryer,Garage door opener
Basement DevelopmentFinished
Basement TypeFull (Finished)
Construction Style AttachmentDetached
Cooling TypeCentral air conditioning
Exterior FinishComposite Siding
Fireplace PresentTrue
Fireplace Total1
Flooring TypeCarpeted,Hardwood,Tile
Foundation TypePoured Concrete
Half Bath Total1
Heating FuelNatural gas
Heating TypeForced air
Size Interior2311 sqft
Stories Total2
Total Finished Area2311 sqft
TypeHouse
Land
Size Total3406.5 sqft|0-4,050 sqft
Size Total Text3406.5 sqft|0-4,050 sqft
Acreagefalse
AmenitiesGolf Course,Park,Playground
Fence TypeNot fenced
Size Irregular3406.50
Surrounding
Ammenities Near ByGolf Course,Park,Playground
Community FeaturesGolf Course Development
Zoning DescriptionR-C2
Other
FeaturesBack lane,Wet bar,No Animal Home,No Smoking Home
BasementFinished,Full (Finished)
FireplaceTrue
HeatingForced air
Remarks
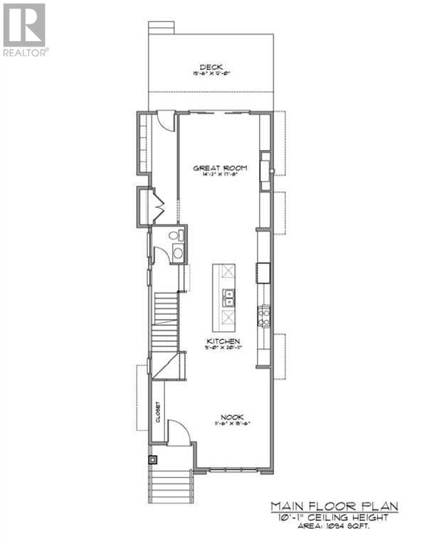
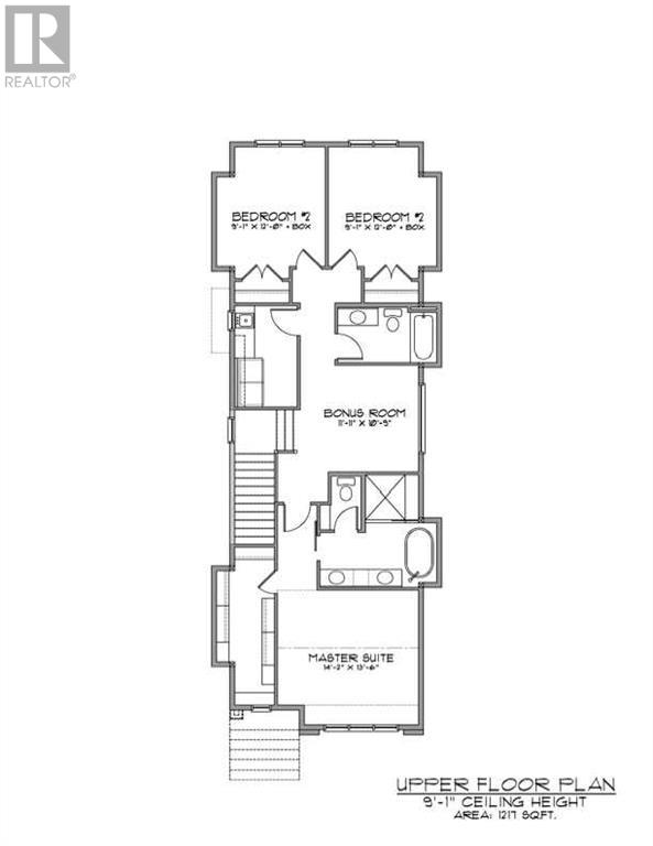
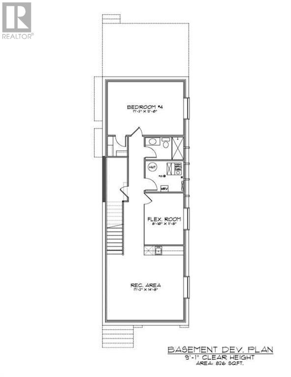
CALL YOUR REALTOR TODAY! ~ STILL TIME TO PICK YOUR COLORS AND LUXURY FINISHING TOUCHES ~ OVER SIZED 27.5 X 124 FT LOT ~ OVER 3100 SQFT OF LIVING SPACE! Brand new luxuriously designed, detached home that perfectly combines beauty with function with the added benefits of a finished basement, a sunny south-facing backyard and a spacious MUD ROOM. Seemingly endless upgrades include hardwood flooring, modern lighting fixtures, designer details and an abundance of natural light. The dining room provides a casually elegant space for everyone to come together over a delicious meal. Culinary adventures are inspired in the gorgeous kitchen featuring stainless steel appliances, a massive breakfast bar island, a plethora of cabinets and a high-end design. Clear sightlines into the living room promote unobstructed conversations and encourage relaxation in front of the fireplace. Gather in the upper level bonus room and enjoy your downtime in this peaceful sanctuary that ideally separates the bedrooms for ultimate privacy. The primary suite is a luxurious oasis with a large walk-in closet and a lavish 5-piece ensuite boasting dual sinks, a deep soaker tub and a separate oversized shower. 2 additional bedrooms are handily located on the other side of the home, both are spacious and bright with easy access to the 4-piece main bathroom. Laundry with a sink and storage is also conveniently located on this level. Convene in the huge rec room in the finished basement for movies and games then grab a snack or refill your drink at the wet bar. Ideally enclosed by a 10mm glass door, the flex room creates a versatile space for a home office, gym or enclosed playroom. A 4th bedroom and another full bathroom are also on this level. A double detached garage ensures plenty of parking. This phenomenal location has every amenity close by - schools, West Brook Mall and the LRT Station are all within walking distance! (id:22211)
The listing data above is provided under copyright by the Canada Real Estate Association.
The listing data is deemed reliable but is not guaranteed accurate by Canada Real Estate Association nor RealMaster.
MLS®, REALTOR® & associated logos are trademarks of The Canadian Real Estate Association.
Location
Province:
Alberta
City:
Calgary
Community:
Spruce Cliff
Room
Room
Level
Length
Width
Area
Recreational, Games
Bsmt
11.15
14.67
163.59
11.17 Ft x 14.67 Ft
Den
Bsmt
8.83
11.68
103.08
8.83 Ft x 11.67 Ft
Bedroom
Bsmt
17.16
12.01
206.04
17.17 Ft x 12.00 Ft
4pc Bathroom
Bsmt
0.00
0.00
0.00
.00 Ft x .00 Ft
Living
Main
14.17
17.68
250.64
14.17 Ft x 17.67 Ft
Kitchen
Main
9.84
20.93
206.02
9.83 Ft x 20.92 Ft
Dining
Main
11.52
15.49
178.33
11.50 Ft x 15.50 Ft
2pc Bathroom
Main
0.00
0.00
0.00
.00 Ft x .00 Ft
Bonus
Upper
11.91
10.76
128.16
11.92 Ft x 10.75 Ft
Primary Bedroom
Upper
14.17
13.48
191.12
14.17 Ft x 13.50 Ft
Bedroom
Upper
9.09
12.01
109.13
9.08 Ft x 12.00 Ft
Bedroom
Upper
9.09
12.01
109.13
9.08 Ft x 12.00 Ft
5pc Bathroom
Upper
0.00
0.00
0.00
.00 Ft x .00 Ft
4pc Bathroom
Upper
0.00
0.00
0.00
.00 Ft x .00 Ft
Book Viewing
Your feedback has been submitted.
Submission Failed! Please check your input and try again or contact us






