- Alberta
- Calgary
196 Lucas Common NW
CAD$629,900
CAD$629,900 Asking price
196 Lucas Common NWCalgary, Alberta, T3P2B3
Delisted · Delisted ·
332| 1740.91 sqft
Listing information last updated on Thu Oct 12 2023 08:45:58 GMT-0400 (Eastern Daylight Time)

Open Map
Log in to view more information
Go To LoginSummary
IDA2068354
StatusDelisted
Ownership TypeFreehold
Brokered ByBode Platform Inc.
TypeResidential House,Detached
Age New building
Land Size272.06 m2|0-4050 sqft
Square Footage1740.91 sqft
RoomsBed:3,Bath:3
Detail
Building
Bathroom Total3
Bedrooms Total3
Bedrooms Above Ground3
AgeNew building
AppliancesNone
Basement DevelopmentUnfinished
Basement TypeFull (Unfinished)
Construction MaterialWood frame
Construction Style AttachmentDetached
Cooling TypeNone
Exterior FinishStone,Vinyl siding
Fireplace PresentFalse
Flooring TypeCarpeted,Ceramic Tile,Vinyl Plank
Foundation TypePoured Concrete
Half Bath Total1
Heating FuelNatural gas
Heating TypeForced air
Size Interior1740.91 sqft
Stories Total2
Total Finished Area1740.91 sqft
TypeHouse
Land
Size Total272.06 m2|0-4,050 sqft
Size Total Text272.06 m2|0-4,050 sqft
Acreagefalse
AmenitiesPark,Playground
Fence TypeNot fenced
Size Irregular272.06
Surrounding
Ammenities Near ByPark,Playground
Zoning DescriptionR-G
BasementUnfinished,Full (Unfinished)
FireplaceFalse
HeatingForced air
Remarks
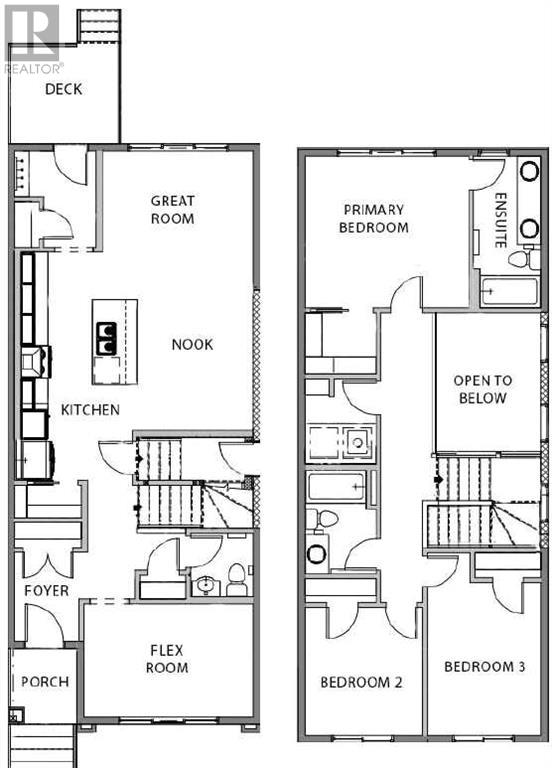
*This home is still under construction & may not be available to be viewed in person at this time. The photos are from a showhome with similar layout, & do not reflect the property for sale directly. * Your new home awaits in Livingston with the Glenmore SSY 20 by Cedarglen Homes. Upon entering this home, you will find a main floor flex room just off the foyer that would be the perfect space for a home-office or spare bedroom. As you move into the main living area, your eyes will immediately be drawn to the open-to-below feature above the nook that makes the space feel extra spacious. A mudroom at the rear includes a built-in bench with coat hooks & provides easy access out to the backyard & a rear deck. Upstairs you will find 3 bedrooms, 2 full bathrooms & a full-size laundry room. Future homeowners will be provided with an appliance allowance from Cedarglen Homes to go & select their own appliances prior to moving in. As a new build, this home will also come with 10 years of warranty through ANHWP. (id:22211)
The listing data above is provided under copyright by the Canada Real Estate Association.
The listing data is deemed reliable but is not guaranteed accurate by Canada Real Estate Association nor RealMaster.
MLS®, REALTOR® & associated logos are trademarks of The Canadian Real Estate Association.
Location
Province:
Alberta
City:
Calgary
Community:
Livingston
Room
Room
Level
Length
Width
Area
2pc Bathroom
Main
NaN
Measurements not available
Great
Main
8.50
12.50
106.22
8.50 Ft x 12.50 Ft
4pc Bathroom
Upper
NaN
Measurements not available
4pc Bathroom
Upper
NaN
Measurements not available
Primary Bedroom
Upper
14.01
12.76
178.79
14.00 Ft x 12.75 Ft
Bedroom
Upper
10.33
10.83
111.89
10.33 Ft x 10.83 Ft
Bedroom
Upper
9.68
12.83
124.16
9.67 Ft x 12.83 Ft
Book Viewing
Your feedback has been submitted.
Submission Failed! Please check your input and try again or contact us














