- New Brunswick
- Bouctouche
25 G E Klomfass
CAD$2,250,000
CAD$2,250,000 Asking price
25 G. E. KlomfassBouctouche, New Brunswick, E4S1T8
Delisted
44| 3304 sqft
Listing information last updated on Mon Jun 26 2023 22:36:02 GMT-0400 (Eastern Daylight Time)

Open Map
Log in to view more information
Go To LoginSummary
IDM144740
StatusDelisted
Ownership TypeFreehold
Brokered ByRE/MAX Avante
TypeResidential House,Bungalow
AgeConstructed Date: 2012
Land Size8450 SQ Meters|1 - 3 acres
Square Footage3304 sqft
RoomsBed:4,Bath:4
Virtual Tour
Detail
Building
Bathroom Total4
Bedrooms Total4
AppliancesCentral Vacuum
Architectural StyleBungalow
Constructed Date2012
Exterior FinishStone,Wood siding
Fireplace PresentFalse
Flooring TypeHardwood,Ceramic
Foundation TypeConcrete
Half Bath Total1
Heating FuelGeo Thermal
Heating TypeHeat Pump,Hot Water
Size Interior3304 sqft
Total Finished Area4634 sqft
TypeHouse
Utility WaterMunicipal water
Land
Size Total Text8450 SQ Meters|1 - 3 acres
Access TypeYear-round access
Acreagetrue
SewerMunicipal sewage system
Size Irregular8450 SQ Meters
Surrounding
Location DescriptionG E Klomfass is off of Acadie in Bouctouche.
View TypeView of water
Other
FeaturesPaved driveway
FireplaceFalse
HeatingHeat Pump,Hot Water
Remarks
Pride of ownership is evident in this prestigious Bouctouche River waterfront home that offers panoramic sunrise/sunsets and is immaculately maintained sitting on over 2 acres of well-manicured property with breathtaking views. Upon arrival, you'll find a double paved driveway with phenomenal curb appeal that brings you inside to an impressive foyer with vaulted ceilings and decorative designed columns. main floor den/office with tray ceiling, and a propane fireplace surrounded by built-ins. Main floor living room is massive with vaulted ceilings, another propane fireplace, soaring windows showcasing the water views. A chef's dream kitchen with lots of wood cabinets, quartz counters, top-of-the-line appliances including propane stove, fridge & freezer combo, oversized island, peninsula used as breakfast counter. Garden doors lead to a back deck plus a side deck. Primary bedroom with luxurious 5PC ensuite bath and amazing walk-in closet. Another bedroom, 3PC bath, laundry with storage, 2PC powder room and 2 car garage complete this floor. Added bonus room on top of garage is ideal for exercise/theatre room. Down to the walk-out basement, large family room with lots of windows and access to backyard, additional 2 bedrooms, 3PC bath, storage, electrical room plus a boat room/toy garage. Other features: Geothermal, in-floor hot water heating, generator, alarm, central vac, covered lower deck. Enjoy kayaking, canoeing, sailing, or just relaxing on this waterfront property. (id:22211)
The listing data above is provided under copyright by the Canada Real Estate Association.
The listing data is deemed reliable but is not guaranteed accurate by Canada Real Estate Association nor RealMaster.
MLS®, REALTOR® & associated logos are trademarks of The Canadian Real Estate Association.
Location
Province:
New Brunswick
City:
Bouctouche
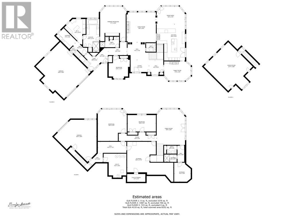
Room
Room
Level
Length
Width
Area
Loft
Second
22.11
28.61
632.63
22.11x28.6
Other
Bsmt
10.99
12.01
131.98
11x12
Storage
Bsmt
18.01
19.00
342.15
18x19
Utility
Bsmt
12.01
14.01
168.22
12x14
Other
Bsmt
16.99
25.00
424.87
17x25
3pc Bathroom
Bsmt
NaN
Measurements not available
Bedroom
Bsmt
18.01
18.01
324.43
18x18
Bedroom
Bsmt
18.01
10.99
197.96
18x11
Family
Bsmt
18.01
23.00
414.25
18x23
2pc Bathroom
Main
NaN
Measurements not available
Laundry
Main
8.40
8.01
67.24
8.4x8
3pc Bathroom
Main
NaN
Measurements not available
Bedroom
Main
13.91
10.79
150.15
13.9x10.8
5pc Ensuite bath
Main
8.99
16.99
152.77
9x17
Bedroom
Main
18.01
20.51
369.34
18x20.5
Kitchen
Main
33.99
18.01
612.21
34x18
Den
Main
19.59
14.60
285.96
19.6x14.6
Living
Main
18.01
19.00
342.15
18x19
Foyer
Main
12.01
8.01
96.13
12x8












































