- Ontario
- Arnprior
129 Bert Hall St
CAD$797,400
CAD$797,400 Asking price
129 BERT HALL STREETArnprior, Ontario, K7S0H1
Delisted
434
Listing information last updated on Tue Mar 02 2021 00:38:45 GMT-0500 (Eastern Standard Time)

Open Map
Log in to view more information
Go To LoginSummary
ID1221568
StatusDelisted
Ownership TypeFreehold
Brokered BySUTTON GROUP - OTTAWA REALTY
TypeResidential House,Detached
AgeConstructed Date: 2021
Lot Size43 ft * 111 ft,8 in ft 42.98 ft X 111.68 ft
Land Size42.98 ft X 111.68 ft
RoomsBed:4,Bath:3
Detail
Building
Bathroom Total3
Bedrooms Total4
Bedrooms Above Ground4
AppliancesHood Fan
Basement DevelopmentUnfinished
Basement TypeFull (Unfinished)
Constructed Date2021
Construction MaterialPoured concrete
Construction Style AttachmentDetached
Cooling TypeNone
Exterior FinishAluminum siding,Brick,Siding
Fireplace PresentTrue
Fireplace Total1
Flooring TypeWall-to-wall carpet,Mixed Flooring,Hardwood,Ceramic
Foundation TypePoured Concrete
Half Bath Total1
Heating FuelNatural gas
Heating TypeForced air
Stories Total2
TypeHouse
Utility WaterMunicipal water
Land
Size Total Text42.98 ft X 111.68 ft
Size Frontage43 ft
Acreagefalse
AmenitiesRecreation Nearby,Shopping
SewerMunicipal sewage system
Size Depth111 ft,8 in
Size Irregular42.98 ft X 111.68 ft
Surrounding
Ammenities Near ByRecreation Nearby,Shopping
Zoning DescriptionRESIDENTIAL
BasementUnfinished
FireplaceTrue
HeatingForced air
Remarks
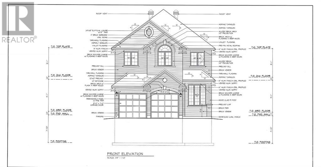
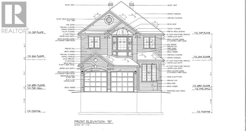
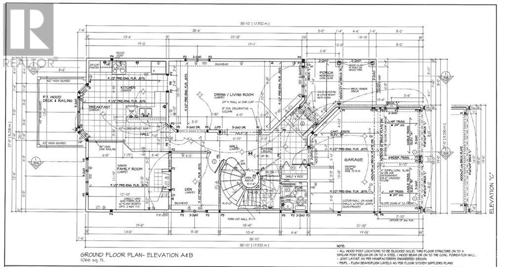
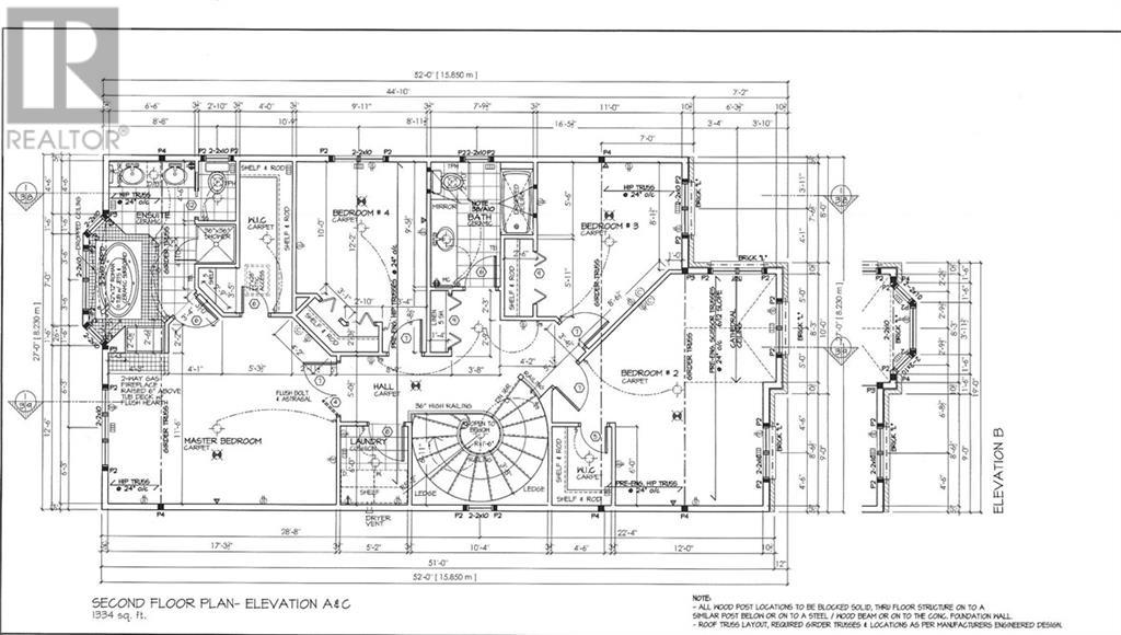
Picturesque Arnprior offers the charm of life in a heritage town but with premium big brand shopping, schools, medical services and recreation at your doorstep. Village Creek is an entirely new community of newly built homes and only a 20-minute drive from the Canadian Tire Centre. New Construction, Occupancy in Spring/Summer of 2021. The Carmella offers 4 large bedrooms, 2 full washrooms and a Laundry room on the second floor. Upon entering you have a very Spacious Den across from the Living/Dining room that opens up into the hallway. Kitchen and Family room, in the rear. Family room includes a fireplace, option for a two way FP. This home is loaded with features for a growing family, filled with high end finishes that you can choose. Olympia Homes are also including a Fully Upgraded Kitchen. Ask what could be installed and upgraded to truly customize your home. Call today to schedule an appointment to find out what works best for you and your family's needs. (id:22211)
The listing data above is provided under copyright by the Canada Real Estate Association.
The listing data is deemed reliable but is not guaranteed accurate by Canada Real Estate Association nor RealMaster.
MLS®, REALTOR® & associated logos are trademarks of The Canadian Real Estate Association.
Location
Province:
Ontario
City:
Arnprior
Community:
Village Creek
Room
Room
Level
Length
Width
Area
Primary Bedroom
Second
NaN
4pc Ensuite bath
Second
11.00
NaN
Bedroom
Second
NaN
Bedroom
Second
NaN
Bedroom
Second
NaN
Laundry
Second
NaN
Other
Second
NaN
4pc Bathroom
Second
NaN
Foyer
Main
8.00
NaN
Living/Dining
Main
NaN




