- British Columbia
- Armstrong
3910 Highland Park Cres
CAD$599,000
CAD$599,000 Asking price
3910 Highland Park CrescentArmstrong, British Columbia, V0B1B4
Delisted · Delisted ·
324| 1390 sqft
Listing information last updated on Thu Jul 20 2023 00:20:27 GMT-0400 (Eastern Daylight Time)

Open Map
Log in to view more information
Go To LoginSummary
ID10276769
StatusDelisted
Ownership TypeFreehold
Brokered ByRE/MAX Vernon
TypeResidential House
AgeConstructed Date: 1989
Land Size0.143 ac|under 1 acre
Square Footage1390 sqft
RoomsBed:3,Bath:2
Detail
Building
Bathroom Total2
Bedrooms Total3
AppliancesDryer - Electric,Refrigerator,Washer,Gas stove(s),Dishwasher,Microwave
Basement DevelopmentPartially finished
Basement FeaturesSeparate entrance
Basement TypeFull (Partially finished)
Constructed Date1989
Construction Style Split LevelSplit level
Exterior FinishVinyl siding
Fireplace PresentFalse
Fire ProtectionSmoke Detectors
Flooring TypeCeramic Tile,Vinyl,Carpeted
Foundation TypeConcrete
Half Bath Total0
Heating FuelNatural gas
Heating TypeForced air
Roof MaterialAsphalt shingle
Roof StyleConventional
Size Interior1390 sqft
TypeHouse
Utility WaterMunicipal water
Land
Size Total0.143 ac|under 1 acre
Size Total Text0.143 ac|under 1 acre
Acreagefalse
Fence TypeFence
SewerMunicipal sewage system
Size Irregular0.143
BasementPartially finished,Separate entrance,Full (Partially finished)
FireplaceFalse
HeatingForced air
Remarks
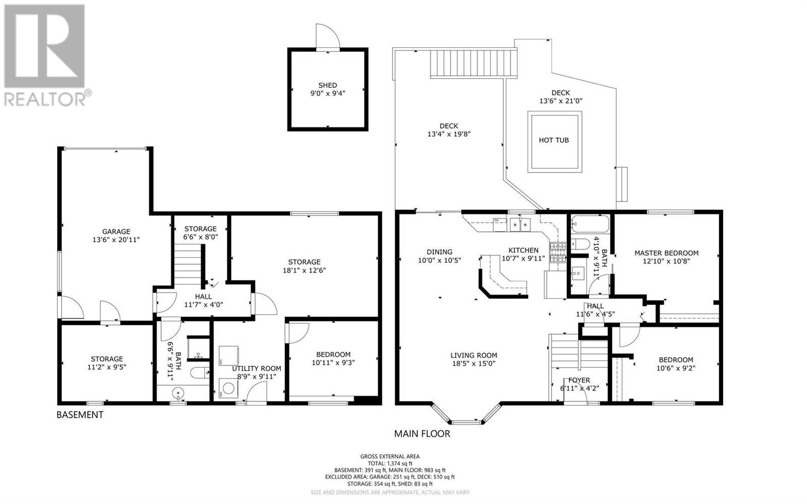
Welcome home to this charming family residence located in the highly sought-after neighborhood of Highland Park Armstrong. This beautifully renovated 3-bedroom, 2-bathroom home offers an abundance of desirable features and is perfect for growing families. Upon entering, you will be captivated by the extensive renovations that have been done upstairs. New flooring throughout creates a seamless flow and adds a touch of elegance to the living spaces. The bathroom has undergone a stunning modern transformation and a convenient throughway to the master bedroom, providing convenience. Natural light floods the bright kitchen, thanks to multiple skylights positioned above creating a warm and inviting atmosphere. The adjacent dining area boasts picturesque views of the double decks, which overlook a generously sized and fully fenced backyard. These decks offer the ideal space for outdoor entertaining and relaxation. Downstairs, you'll discover ample storage space, a laundry area, and the 3rd bedroom. Additionally, there is an unfinished flex room that allows you to customize it to suit your family's requirements. Whether you envision a home office, playroom, or hobby space, the possibilities are endless. Convenience is further enhanced by the single-car garage, which provides direct access to the basement. This feature is especially appreciated during the winter months. An outdoor shed is also included, offering additional storage space for your tools. (id:22211)
The listing data above is provided under copyright by the Canada Real Estate Association.
The listing data is deemed reliable but is not guaranteed accurate by Canada Real Estate Association nor RealMaster.
MLS®, REALTOR® & associated logos are trademarks of The Canadian Real Estate Association.
Location
Province:
British Columbia
City:
Armstrong
Community:
Armstrong/Spall
Room
Room
Level
Length
Width
Area
Primary Bedroom
Second
12.83
10.66
136.78
12 ft ,10 in x 10 ft ,8 in
Bedroom
Second
10.50
9.15
96.10
10 ft ,6 in x 9 ft ,2 in
Hall
Second
11.52
4.43
51.00
11 ft ,6 in x 4 ft ,5 in
Full bathroom
Second
4.82
9.91
47.79
4 ft ,10 in x 9 ft ,11 in
Kitchen
Second
10.60
9.91
105.00
10 ft ,7 in x 9 ft ,11 in
Dining
Second
10.01
10.40
104.07
10 ft x 10 ft ,5 in
Living
Second
18.41
14.99
275.96
18 ft ,5 in x 15 ft
Other
Second
13.32
19.65
261.77
13 ft ,4 in x 19 ft ,8 in
Storage
Bsmt
18.08
12.50
225.97
18 ft ,1 in x 12 ft ,6 in
Storage
Bsmt
11.15
9.42
105.03
11 ft ,2 in x 9 ft ,5 in
Full bathroom
Bsmt
6.50
9.91
64.36
6 ft ,6 in x 9 ft ,11 in
Laundry
Bsmt
8.76
9.91
86.79
8 ft ,9 in x 9 ft ,11 in
Bedroom
Bsmt
10.93
9.25
101.08
10 ft ,11 in x 9 ft ,3 in
Foyer
Main
6.92
4.17
28.84
6 ft ,11 in x 4 ft ,2 in
Other
Main
13.48
21.00
283.13
13 ft ,6 in x 21 ft





























