- Ontario
- Oakville
304 Fritillary St
CAD$2,199,900
CAD$2,199,900 要價
304 Fritillary StreetOakville, Ontario, L6L6W7
退市 · 終止 ·
454(2+2)| 2500-3000 sqft
Listing information last updated on Tue Oct 15 2024 15:45:12 GMT-0400 (Eastern Daylight Time)

Open Map
Log in to view more information
Go To LoginSummary
IDW9301436
Status終止
產權永久產權
Possession30 Days
Brokered ByROYAL LEPAGE SUPREME REALTY
Type民宅 House,獨立屋
Age 16-30
Lot Size43.31 * 89.07 Feet
Land Size3857.62 ft²
RoomsBed:4,Kitchen:1,Bath:5
Parking2 (4) 內嵌式車庫 +2
Virtual Tour
Detail
公寓樓
浴室數量5
臥室數量4
地上臥室數量4
家用電器Garburator,Dishwasher,Dryer,Refrigerator,Stove,Washer,Window Coverings
地下室裝修Finished
地下室類型N/A (Finished)
風格Detached
空調Central air conditioning
外牆Brick,Stone
壁爐True
地板Hardwood,Laminate,Carpeted
地基Concrete
洗手間2
供暖方式Natural gas
供暖類型Forced air
使用面積2499.9795 - 2999.975 sqft
樓層2
裝修面積
類型House
供水Municipal water
Architectural Style2-Storey
Fireplace是
Property FeaturesFenced Yard,Park,Place Of Worship
Rooms Above Grade12
RoofAsphalt Shingle
Heat SourceGas
Heat TypeForced Air
水Municipal
土地
面積43.3 x 89.1 FT
面積false
設施Park,Place of Worship
圍牆類型Fenced yard
下水Sanitary sewer
Size Irregular43.3 x 89.1 FT
車位
Parking FeaturesPrivate Double
周邊
設施公園,參拜地
Location DescriptionGreat Lakes Blvd & Nautical Bl
Other
Den Familyroom是
Interior FeaturesGarburator,In-Law Capability,Storage
Internet Entire Listing Display是
下水Sewer
Basement已裝修
PoolNone
FireplaceY
A/CCentral Air
Heating壓力熱風
Exposure西
Remarks
Absolutely spectacular, custom renovated home in desirable Lakeshore Woods. This truly exceptional property offers the perfect blend of comfort, elegance & tranquility. Impressive main floor is both functional & stylish w/newly installed custom floor-to-ceiling B/I cabinets in renovated laundry & front entrance hall adding a touch of sophistication & practical storage. Entertain w/ease in the beautiful eat-in kitchen that walks out to the lush, landscaped backyard & overlooks the spacious & cozy family room w/gas fireplace. Primary bdrm offers serene escape w/4pc reno'd spa-inspired bathroom. The 2nd & 4th bdrms offer lavish ensuite retreats that have been masterfully renovated & are complete w/modern fixtures & exquisite finishes. Finished basement is a fantastic entertainment hub featuring a gaming area, TV room, pool table & stylish bar, perfect for hosting friends & family. Step into a world of refined elegance and modern comfort where every detail has been curated to perfection.Fab garage offers epoxy floors & B/I cabinets. Ample storage.Home seamlessly blends classic charm w/contemp updates offering unparalleled living exp in 1 of Oakville's most desirable neighbourhoods. Close to Hwys,Shop,Lake Ont, Parks&Trails
The listing data is provided under copyright by the Toronto Real Estate Board.
The listing data is deemed reliable but is not guaranteed accurate by the Toronto Real Estate Board nor RealMaster.
Location
Province:
Ontario
City:
Oakville
Community:
Bronte West 06.04.0020
Crossroad:
Great Lakes Blvd & Nautical Bl
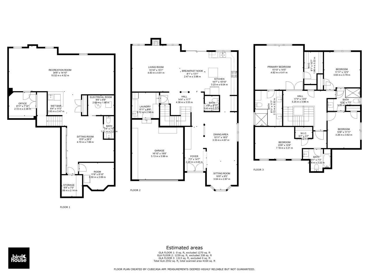
Room
Room
Level
Length
Width
Area
Living Room
主
24.02
10.99
263.95
Dining Room
主
24.02
10.99
263.95
廚房
主
14.01
8.99
125.94
早餐
主
12.99
10.01
130.01
Great Room
主
15.85
15.16
240.19
主臥
Second
15.85
14.50
229.79
臥室
Second
14.99
10.99
164.79
臥室
Second
12.01
11.32
135.92
臥室
Second
12.01
12.01
144.19
Game Room
地下室
15.58
14.99
233.66
娛樂
地下室
36.75
17.49
642.56
辦公室
地下室
8.33
7.84
65.34
School Info
Private SchoolsK-6 Grades Only
Gladys Speers Public School
2150 Samway Rd, 奧克維爾2.966 km
ElementaryEnglish
7-8 Grades Only
Eastview Public School
2266 Hixon St, 奧克維爾2.427 km
MiddleEnglish
9-12 Grades Only
Thomas A. Blakelock High School
1160 Rebecca St, 奧克維爾4.809 km
SecondaryEnglish
K-8 Grades Only
St. Dominic Elementary School
2405 Rebecca St, 奧克維爾1.961 km
ElementaryMiddleEnglish
9-12 Grades Only
St. Thomas Aquinas Secondary School
124 Dorval Dr, 奧克維爾6.976 km
SecondaryEnglish
2-8 Grades Only
Pine Grove Public School
529 4th Line, 奧克維爾5.689 km
ElementaryMiddleFrench Immersion Program
9-12 Grades Only
Thomas A. Blakelock High School
1160 Rebecca St, 奧克維爾4.809 km
SecondaryFrench Immersion Program
1-8 Grades Only
St. Mary Elementary School
2175 Colonel William Pky, 奧克維爾5.426 km
ElementaryMiddleFrench Immersion Program
9-12 Grades Only
St. Ignatius Of Loyola Secondary School
1550 Nottinghill Gate, 奧克維爾6.709 km
SecondaryFrench Immersion Program
Book Viewing
Your feedback has been submitted.
Submission Failed! Please check your input and try again or contact us







































