身处多伦多Downtown
AAA级地理位置
五大区的中心点
这个即将预售的楼盘
它就是
400 KING WEST
项目名:400 King West
多伦多真正的黄金市中心地段——Downtown Core,在大家心中一直带着冷艳的光环和颇为神秘的色彩。很多人心向往之,更有无数年轻人在这里挑灯夜读,拼搏奋斗,只为打下属于自己的一片天地。
多伦多的Downtown Core一直以来都是人气最爆表的一块土地。在这里充斥着灯火辉煌的街道、寸土寸金的名品店、车水马龙的人流,还有着无数璀璨的光环。无论是整个北美大陆,还是加拿大又或是GTA地区,多伦多的市中心算的上是集交通、文化、艺术、教育、金融、科技、创业、医疗等领域的核心地带,同时也对移民和投资客充满着巨大的诱惑力。
由于多伦多悠久的移民历史,使之也成为全世界最多元化的城市之一。在经济上就更不用说了,多伦多证券交易所是世界第七大交易所,总部设于多伦多市内,在这里有许多加拿大公司上市,所以加拿大大约1/6的就业机会都在多伦多。
自1981年以来,Plaza的公寓开发项目屡获殊荣,以建造“质量持久”,“传递最佳城市的精神”为使命,打造出了一个个受人欢迎的社区。他们是第一个将高级材料和功能作为住房标准的开发商。目前已完成和在建的开发项目价值已超过70亿加元,不仅有着最高的质量评级,且在2018年获得了Tarion年度建造商奖。
PLaza的的开发项目均迎合了购买者追求优质生活方式的需求。他们密切关注细节,设计和布局,争取将顶级房屋带给买家。这种开发模式以及极高的声誉为购买者以及所有合作伙伴都带来了更高的利益。以往的项目从Low-Rise到High-Rise应有尽有,如下图:
位于多伦多市中心的King Street West和Charlotte St的交界处,紧邻多伦多的科技区,娱乐区,金融区等五大区。距离全球
最大的地下商场PATH仅一公里,步行
即达CN Tower和安大略湖边,交通则可直达St.Andrew和Union Station地铁站,有众多TTC公交线路可搭乘,在沿路上还有24小时运营的街车,根本无需担心交通出行。
对于有车一族来说,5分钟即可上Gardiner Expy高速,7分钟到多伦多大学主校区,9分钟到Ryerson University,都是10分钟之内就可以到达的。
周围更是不缺各种生活设施,50多个办公大楼,有着各大银行,保险公司,四大会计师行,1200多个餐厅,购物,服务设施都近在咫尺,步行指数高达100/100!且周围还有众多近几年来著名的公寓,例如:55 Mercer, Encore Theatre District Condos等等。
步行5分钟即达Clarence Square
公园
步行6分钟即达著名的Roy
Thomson Hall教堂
步行10分钟即达CN Tower
开车5分钟即达安大略省美术馆
开车7分钟即达多伦多大学主校区
开车7分钟即达Eaton Center
购物中心
开车9分钟即达Ryerson大学
4分钟即上Gardiner Expy高速
5分钟即上DVP高速
更新内部资料可持续关注“多伦多之家”了解详情或致电905-513-8000
现在周边的情况:
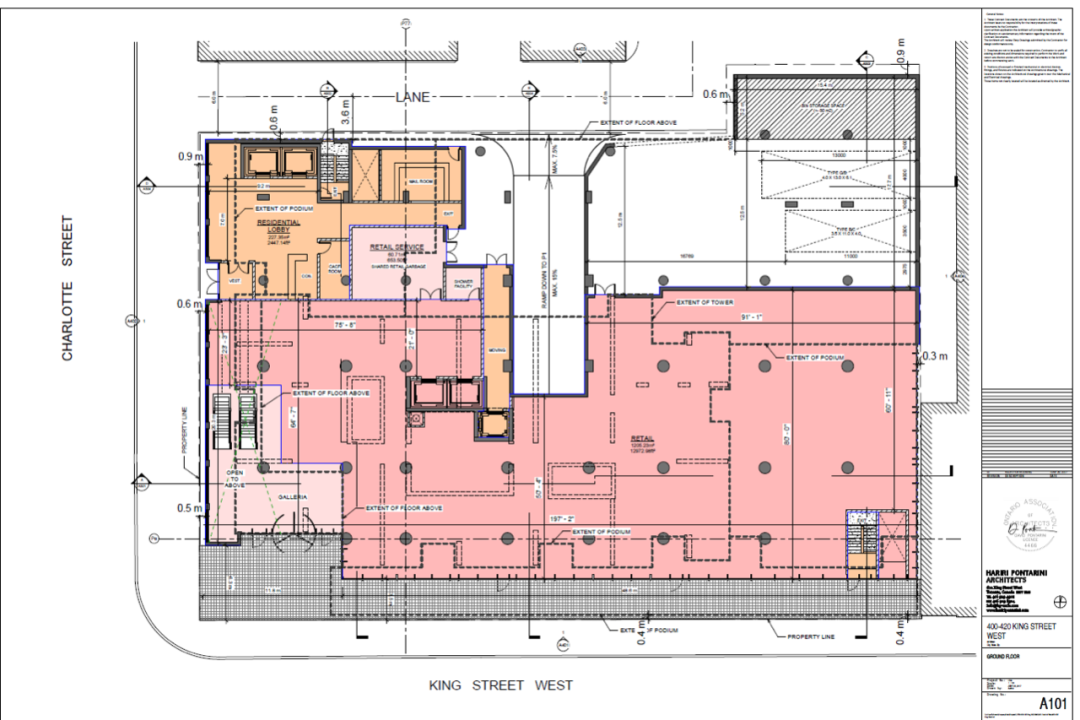
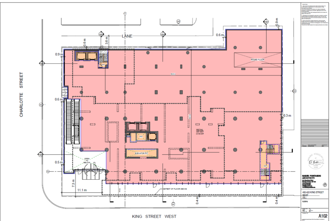
400 King West部分设计草图:
来源Urban Toronto
400 King West 位于多伦多市中心5大核心区的中心 - 金融区、科技区、时尚区、娱乐区和金融南区。周围国际大牌公司林立 - 谷歌、微软、亚马逊、雅虎、多伦多证券交易所、Cisco、wework等等。
根据全球最大的商业地产服务公司CBRE的权威研究表明,2019年加拿大的多伦多列为北美科技人才增长的第三大城市,领先于华盛顿和纽约。而且多伦多在过去的5年里增加了8万多技术类职位,其中很多在多伦多市中心的科技区。
并且像谷歌这样的IT巨头在近几年内不断地入驻到多伦多市中心里,这也将多伦多向全球一线城市推进了一大步,这座城市未来会出现翻天覆地的变化,并大大推动多伦多的房地产市场。
Sales Rep.
HOMELIFE LANDMARK REALTY INC., BROKERAGE --- .